Alte Scheune
Oben schlafen, unten gemeinsam die Freizeit verbringen: Die “Alte Scheune” bietet viel Platz für Gruppen.
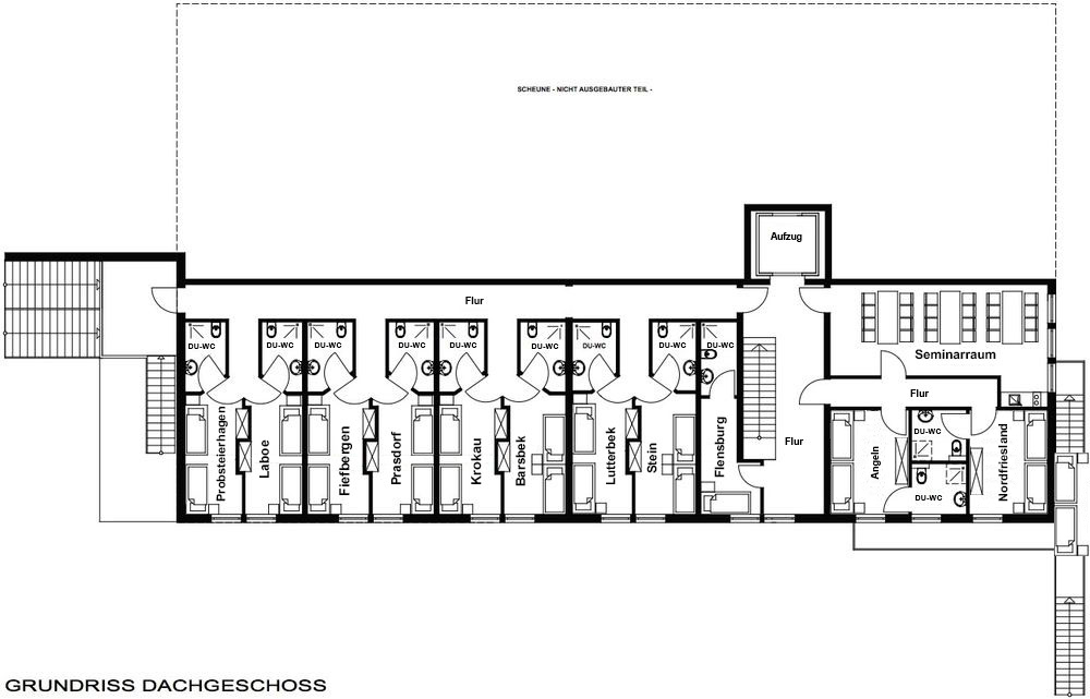
Dachgeschoss (mit einem Fahrstuhl erreichbar)
10 rollstuhlgerechte Doppelzimmer mit eigener Dusche/WC, ein rollstuhlgerechtes Einzelzimmer mit eigener Dusche/WC.
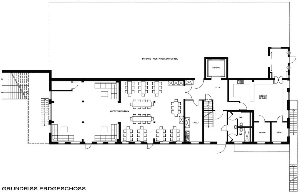
Zusätzlich ein Aufenthaltsraum mit kleiner Küche mit Kühlschrank, Mikrowelle, Kaffeemaschine etc. Außerdem eine Sitzecke mit SAT-TV und DVD-Player.
